707 12th Avenue Cranbrook, British Columbia V1C 2T3
$589,000
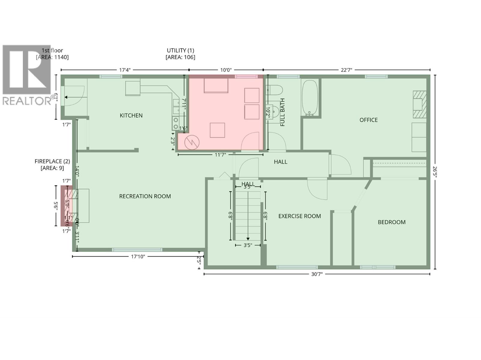
This well-designed home offers 2857 sq. ft. of living space spread across two floors. The property boasts 5 bedrooms, including a primary bedroom with an ensuite, and 2 other full bathrooms, providing ample space for a growing family or those who enjoy hosting guests. The interior layout is thoughtfully planned, featuring a living room, two kitchens, and a game room for entertainment. The kitchen on the main floor features plenty of cabinetry, spacious countertops, and ample natural light. The kitchen in the basement can be used as a mortgage helper or a place to do your canning. Outside you will find a fully fenced yard, a large back deck and a front balcony. The home is close to schools, recreation, and is a couple minute drive to downtown. The property's layout and amenities make it ideal for comfortable family living while providing spaces for work, play, and relaxation. Call your Real Estate agent today to schedule a showing. (id:49650)
Property Details
| MLS® Number | 10377918 |
| Property Type | Single Family |
| Neigbourhood | Cranbrook South |
| Amenities Near By | Park, Recreation, Schools |
| Features | Balcony |
| Parking Space Total | 3 |
Building
| Bathroom Total | 3 |
| Bedrooms Total | 5 |
| Constructed Date | 1969 |
| Construction Style Attachment | Detached |
| Fireplace Fuel | Gas |
| Fireplace Present | Yes |
| Fireplace Total | 2 |
| Fireplace Type | Unknown |
| Flooring Type | Mixed Flooring |
| Half Bath Total | 1 |
| Heating Type | Baseboard Heaters, Forced Air |
| Roof Material | Metal |
| Roof Style | Unknown |
| Stories Total | 2 |
| Size Interior | 2857 Sqft |
| Type | House |
| Utility Water | Municipal Water |
Parking
| Carport | |
| Street | |
| Rear |
Land
| Acreage | No |
| Fence Type | Fence |
| Land Amenities | Park, Recreation, Schools |
| Sewer | Municipal Sewage System |
| Size Irregular | 0.21 |
| Size Total | 0.21 Ac|under 1 Acre |
| Size Total Text | 0.21 Ac|under 1 Acre |
Rooms
| Level | Type | Length | Width | Dimensions |
|---|---|---|---|---|
| Basement | Bedroom | 10'6'' x 12'9'' | ||
| Basement | Bedroom | 12'7'' x 8'7'' | ||
| Basement | Exercise Room | 12'7'' x 9'2'' | ||
| Basement | Full Bathroom | 9'3'' x 5'8'' | ||
| Basement | Laundry Room | 9'1'' x 9'9'' | ||
| Basement | Kitchen | 10'2'' x 13'4'' | ||
| Basement | Family Room | 13'2'' x 18' | ||
| Main Level | Hobby Room | 8'7'' x 8'4'' | ||
| Main Level | Other | 15'9'' x 12'10'' | ||
| Main Level | Full Bathroom | 10'5'' x 4'1'' | ||
| Main Level | Bedroom | 12'9'' x 11'11'' | ||
| Main Level | Bedroom | 12'9'' x 9'5'' | ||
| Main Level | Partial Ensuite Bathroom | 5'4'' x 4'10'' | ||
| Main Level | Primary Bedroom | 10'8'' x 10'9'' | ||
| Main Level | Dining Room | 10'7'' x 9'0'' | ||
| Main Level | Kitchen | 10'7'' x 16'9'' | ||
| Main Level | Living Room | 13'3'' x 18'3'' |
https://www.realtor.ca/real-estate/29426620/707-12th-avenue-cranbrook-cranbrook-south
Interested?
Contact us for more information
Bruce Seitz
#25 - 10th Avenue South
Cranbrook, British Columbia V1C 2M9
(250) 426-8211
(250) 426-6270
































