2321 Industrial Road 2 Unit# 44 Cranbrook, British Columbia V1C 6H3
$245,900Maintenance, Pad Rental
$450 Monthly
Maintenance, Pad Rental
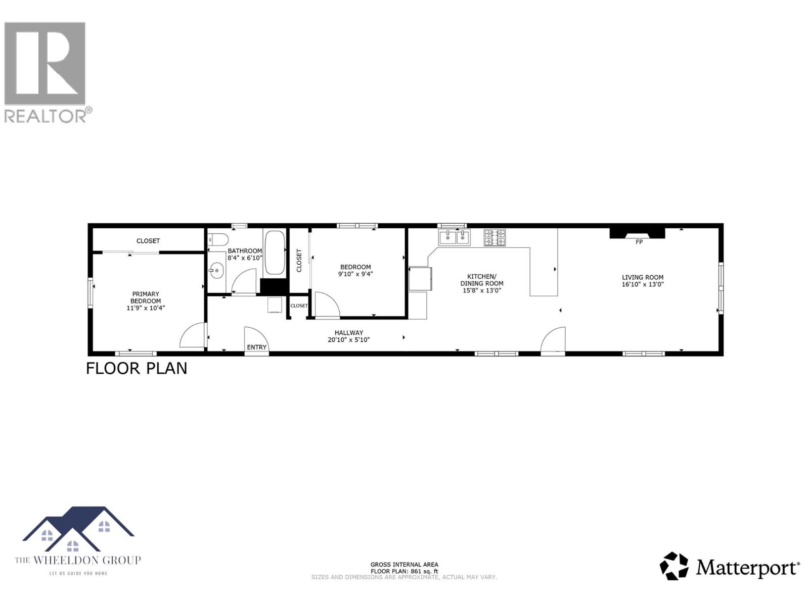
$450 MonthlyWelcome to #44 Georgian Heights Park. This well-laid-out single-wide manufactured home offers a comfortable and functional design with 2 bedrooms, 1 bathroom, and an open-concept kitchen and living area that feels bright and welcoming. Set on a great lot surrounded by mature trees, the property enjoys easy access to Moir Park, along with three storage sheds and a greenhouse out back - perfect for storage, hobbies, or gardening. With its peaceful setting, practical layout, and convenient location, this home presents a wonderful opportunity for easy, low-maintenance living with a bit of extra outdoor space to enjoy. (id:49650)
Property Details
| MLS® Number | 10373734 |
| Property Type | Single Family |
| Neigbourhood | Cranbrook North |
| Features | Balcony |
| Parking Space Total | 2 |
Building
| Bathroom Total | 1 |
| Bedrooms Total | 2 |
| Constructed Date | 1996 |
| Cooling Type | Central Air Conditioning |
| Exterior Finish | Vinyl Siding |
| Flooring Type | Carpeted, Laminate |
| Foundation Type | See Remarks |
| Heating Type | Forced Air, See Remarks |
| Roof Material | Asphalt Shingle |
| Roof Style | Unknown |
| Stories Total | 1 |
| Size Interior | 924 Sqft |
| Type | Manufactured Home |
| Utility Water | Municipal Water |
Parking
| Stall |
Land
| Acreage | No |
| Sewer | Municipal Sewage System |
| Size Total Text | Under 1 Acre |
Rooms
| Level | Type | Length | Width | Dimensions |
|---|---|---|---|---|
| Main Level | 4pc Bathroom | 8'4'' x 6'10'' | ||
| Main Level | Primary Bedroom | 11'9'' x 10'4'' | ||
| Main Level | Bedroom | 9'10'' x 9'4'' | ||
| Main Level | Kitchen | 15'8'' x 13'0'' | ||
| Main Level | Living Room | 16'10'' x 13'0'' |
https://www.realtor.ca/real-estate/29285142/2321-industrial-road-2-unit-44-cranbrook-cranbrook-north
Interested?
Contact us for more information
Jason Wheeldon
Personal Real Estate Corporation
www.cranbrookrealty.com/
https://www.facebook.com/cranbrookrealestate/
#25 - 10th Avenue South
Cranbrook, British Columbia V1C 2M9
(250) 426-8211
(250) 426-6270
Kaytee Sharun
www.ekrealty.com/
https://www.linkedin.com/in/kaytee-sharun-22a09b89/
https://www.instagram.com/kaytstheREALTOR®/?hl=en
#25 - 10th Avenue South
Cranbrook, British Columbia V1C 2M9
(250) 426-8211
(250) 426-6270
















